Urban rooms

Urban rooms

Urban rooms

Project data:
Autors: Martin Jančok, Lukáš Kordík, Vít Halada, Benjamín Bradňanský | Location: Szeget, Hungary | Status: Competition | Client: Private | Project date: 2011 | Credits: OFCA

MANIFEST I.
We are bored in contemporary public space. We don’t enjoy artificiality and theatricality. We don’t like sceneries which are abundant in private “public” spaces of shopping malls. We don’t want to be tourists in our cities. We don’t understand nice pavement and bolted down benches on the squares. All the spaces have to nice and before all sustainable. We do miss beauty, maybe it’s too expensive. We do miss ugliness, maybe it’s too cheap. We do miss urbanity. Dirtiness, noise, mixing. We do miss programme. Everything is happening behind the gates of the institutions, behind the doors of the apartments and houses. Public space is a void that is empty. We demand voids that are full. Voids full of programme that they have to get back from the petrified institutions and commercial interiors. Voids full of programme that they have to get back from our living rooms, balconies or gardens.
We demand voids full of sounds. Children and students shouting, music from orchestra rehearsal, noise from moving the “furniture”. We demand voids full of “dirtiness” and imperfection. Never ending dirt and cleaning, assembling and disassembling, moving. We demand the ongoing change. We demand cheapness and its “ugliness”, which is fascinating. We demand voids full of “accidental” meetings of situations, forms, activities and of people. We demand voids full of smells, movement, silence, sun, shadows. We demand voids full of beauty, with proper scale, interesting spaces, surrounded by inspiring facades and with deep and rich ground floors. We demand buildings that are not sceneries but equal partners to the voids. We demand voids that by their fullness gain its identity. We demand voids that are living rooms, workshops, kitchens, yards, terraces. WE DEMAND URBAN ROOMS.
METHOD
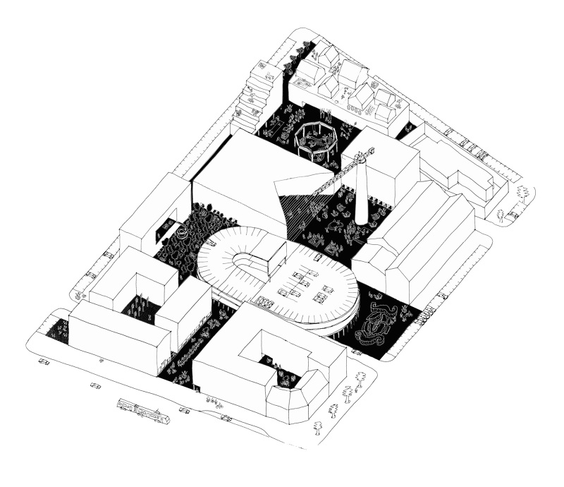
hybridization of the urban context and generic urban generic strategies. The dense generic block of the 19th century and sparse solitary buildings of the second half of the 20th century meet on the site to enable the emergence of the urban structure of the urban rooms. The scale, enclosure and character of the streets, yards and squares meet the strong ego of the solitary building planted into the impotent void. There is already present the mix of the block and the solitaries on the site. The ad hoc layout of the preserved energy plantbuildings is enclosed by a perimeter wall. These become anchor points for the new added solitaire volumes that are forcefully congested into the limits of the site. The emptiness of the site is distributed into several voids that are pushed in between the solitaires. These voids became formally well defined and enclosed. New urban typology comes to life. The urban room. Its emptiness is pressurized until new relationships between the programme and the void space start to emerge. The activities of the petrified institutions start to leak out of the volumes into the emergent space of urban rooms and provoke so the public use. The voids are not empty anymore they become the stages where does the various programmes of the mass perform, multiply and mix. We identify and develop several partial tactics of the hybridization method. MQ strategy (Museumsquartier Vienna) – the space of the urban room is shared by activities of surrounding life of private living and public institutions. The urban room becomes a stage where its enclosing buildings perform. It is a well defined space which is activated by multiplication and mixing of leaked surrounding programmes. Urban room is a space of appropriation by the means of events, groupings, pavilions, terraces, artificial natures, surfaces….
ROTONDA strategy – the solitaire with its strong identity radiates its presence into the surrounding space. In the case of rotonda this radiation is channelled in specific directions via its loggias. In the case of the urban room, the congestion and the position of the solitaires, enables the directionality of the programmatic leaking of the solitaire into each of the urban rooms.
TATE strategy – the public space also invades the controlled interiors of the buildings to question its introvert a exclusive positions. This happens via the typology of urban poche spaces as hypostyle, loggia, passage, grotto,arcade…
MANIFEST II.
In the urban rooms one cannot feel bored or desperate. Urban rooms are never empty. Urban rooms have meaningful and natural programme as they are crossroads, loops on which the relations of various outstanding and important activities mix. Urban rooms do carry an intellectual layer which they steal from the powerful institutions gathered around them. Urban rooms are iconic as they are formed by specific bodies of solitaires. Urban rooms are spectacular as each of them is unique, with its own character generated by specific form and material. Urban rooms are hidden secret chambers, concealed behind walls. They expose themselves after an adventurous passing through the barrier of buildings. They don’t manifest themselves boldly. At the eyelevel their boundaries are weak and their edges mix and flow one into other through the urban poche follies. Urban rooms are strongly formally defined in the planes of facades and in the roof line. Urban rooms are squares as they are magnificent, enclosed, public and spacious. Urban rooms are yards as they are specifically thematic, almost communal. They are yards as they are full of normal everyday ordinary life. Urban rooms are streets as the there are no other connections. They enable passing and also resting. Urban rooms the entry and changing points to and between important programmes. Urban rooms are circuses and stages full of fantastic acts of the private in the public. Urban rooms are parks as they are build up as landscapes, its order is intricate, its vectors are non-hierarchical, its topography nontrivial. Urban rooms are delightful collision of all public what you can find in the city.
 

Previous / Next

Category:
Date:
Back To Top
a

Display your work in a bold & confident manner. Sometimes it’s easy for your creativity to stand out from the crowd.

Social